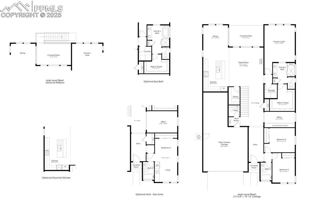
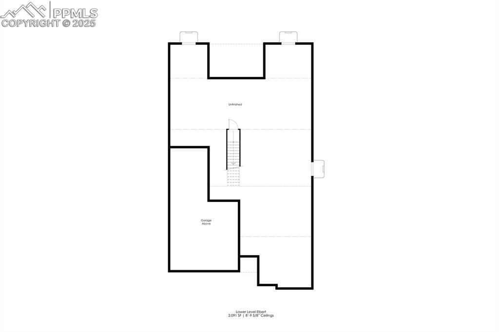
Brand New Low-Maintenance Patio Home! Available Spring 2026! Castle Rock's newest 55+ active-adult community is now selling. The Elbert single-family patio home offers 2,113 finished square feet of living space featuring a distinctive exterior with black framed windows, full unfinished lower level, and a fenced rear yard with front & rear landscaping included. The main level features up to 12-ft ceilings with 8-ft doors, gourmet kitchen, office and large covered patio. Design finishes include a Level 2 package which 42-in maple cabinets throughout with soft close & dove tail drawers, tiled kitchen backsplash, KitchenAid® appliances with a gas cooktop gourmet kitchen and French-door refrigerator, quartz countertops with undermount sinks throughout, 12x24-in bath tile, and beautiful vinyl plank flooring for easy cleaning. Low-maintenance lock and leave lifestyle that includes all landscape maintenance and snow removal. Exclusive amenities include Daybreak Park featuring a covered pavilion, pickleball & cornhole courts, green space, sports field and access to regional walking and biking trails at the Ridgeline Open Space. Located on the west side of I-25, minutes from downtown Castle Rock featuring boutique shopping, restaurants, recreation, medical and everyday conveniences. This is a local homebuilder in the Denver area offering high quality features and Best-In-Class warranties.

Listing Tools (detailViewNewGen)

Property Details of 2021 Grayside Circle

Property Details

Interior Features

Utilities and Appliances

Community

Other Details

Map Location

Listed by Thomas Ullrich of RE/MAX Professionals (303-799-9898)

Based on information submitted to Pikes Peak REALTOR® Services Corp as of January 15, 2026 7:02 AM EST . The real estate listing information and related content displayed on this site is provided exclusively for consumers' personal, non-commercial use and may not be used for any purpose other than to identify prospective properties consumers may be interested in purchasing. This information and related content is deemed reliable, but is not guaranteed accurate by the Pikes Peak REALTOR® Services Corp.

 
 

 

 

Hi there! How can we help you?

Contact us using the form below or give us a call.

Send Us A Message:

I agree to receive marketing and customer service calls and text messages from REAL | Brokers of Colorado. To opt out, you can reply 'stop' at any time or click the unsubscribe link in the emails. Consent is not a condition of purchase. Msg/data rates may apply. Msg frequency varies. Privacy Policy.

Do not fill in this field:

This site is protected by reCAPTCHA and the Google Privacy Policy and Terms of Service apply.

Hi there! How can we help you?

Contact us using the form below or give us a call.

Send Us A Message:

Do not fill in this field:

This site is protected by reCAPTCHA and the Google Privacy Policy and Terms of Service apply.

Hi there! How can we help you?

Contact us using the form below or give us a call.

Send Us A Message:

Do not fill in this field:

This site is protected by reCAPTCHA and the Google Privacy Policy and Terms of Service apply.

Do not fill in this field:

This site is protected by reCAPTCHA and the Google Privacy Policy and Terms of Service apply.

Do not fill in this field:

This site is protected by reCAPTCHA and the Google Privacy Policy and Terms of Service apply.

Do not fill in this field:

This site is protected by reCAPTCHA and the Google Privacy Policy and Terms of Service apply.

$

Do not fill in this field:

This site is protected by reCAPTCHA and the Google Privacy Policy and Terms of Service apply.