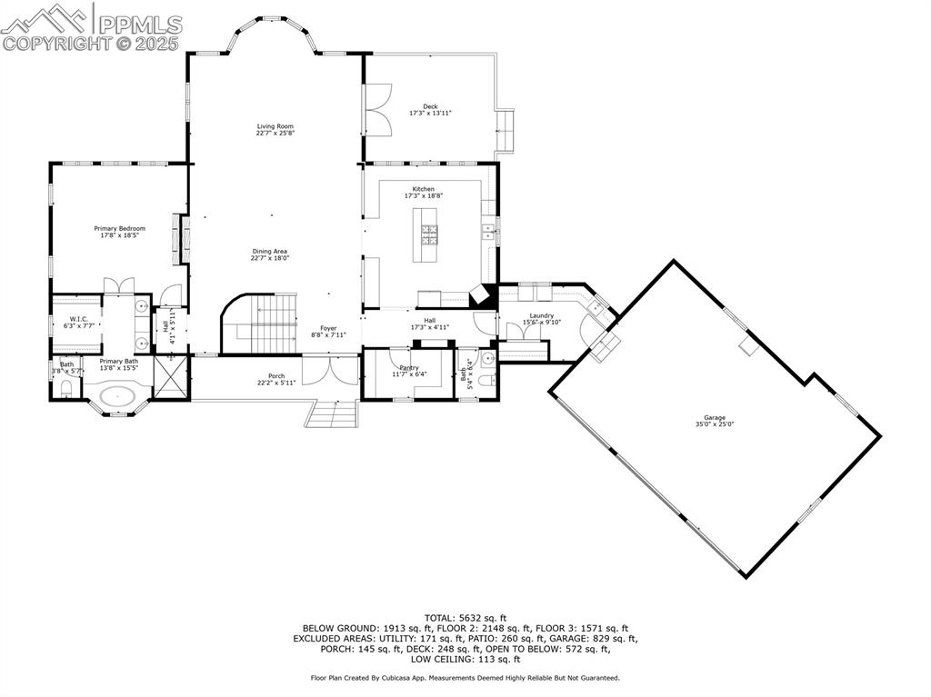
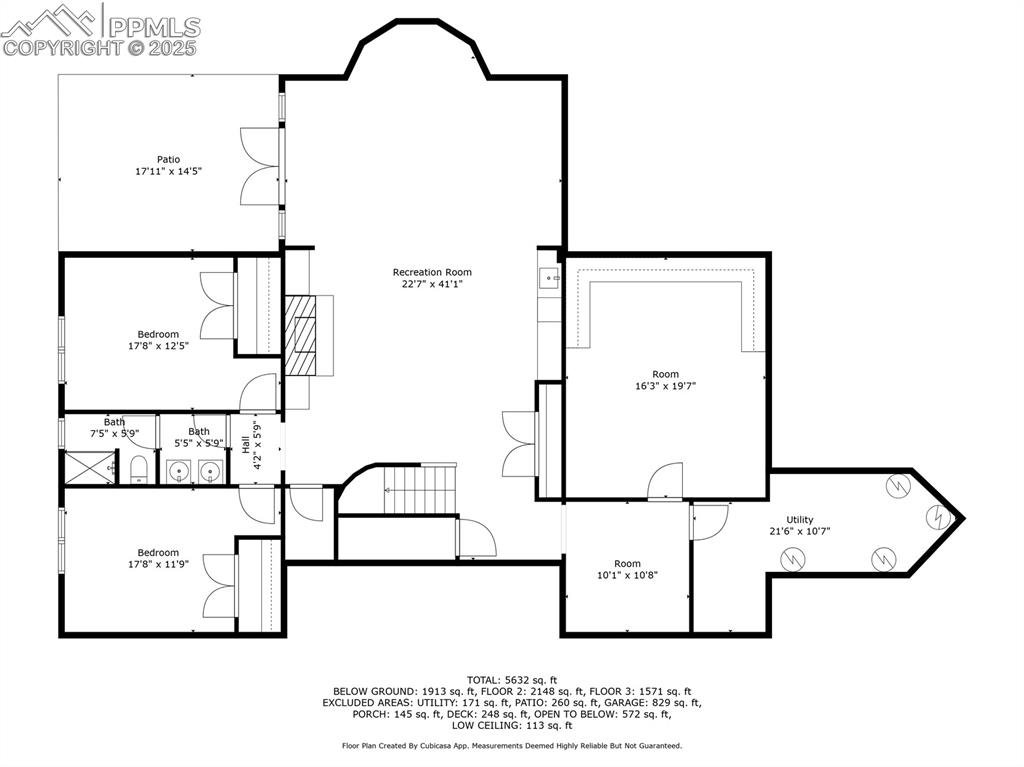
Immerse yourself in the beauty & tranquility of this extraordinary mountain home, tucked away in a gated community only 45 min outside Canon City. Blending sophistication & nature, this stunning sanctuary will leave you in awe! From the moment you enter, the soaring ceilings & striking accent beams create an atmosphere of rustic elegance. This masterpiece is constructed from premium custom-engineered Honka logs, blending timeless charm with modern functionality. In the heart of the home, the adjoined kitchen, dining & living areas are perfect for gathering. The exquisite travertine flooring, enhanced by rich cherry wood inlays enhances the warmth & refinement of the space, while expansive custom windows frame breathtaking panoramic views from every room & seamlessly blending the indoors with your surroundings. The main floor primary bedroom shares a double-sided fireplace with the formal dining & offers a beautifully appointed soaking tub in the connected bath. The refined wrought iron staircase showcases superior architecture and on the upper level you will find a dedicated library (or office) along with vaulted ceiling bedrooms & cozy window nooks. The amenities continue into the walk out basement where you will find endless space for entertaining/hobbies & guest privacy. The 3 car garage & additional parking is perfect for an RV or other storage. No detail has been overlooked extending to the exterior where endless charming landscaping awaits. For those craving adventure, this property grants direct access to pristine BLM land. Explore opportunities for adventure, hiking & the abundant wildlife from majestic elk & deer to other inhabitants right from your backyard! Designed for both year round comfort & self-sufficiency, this home comes equipped with a fully automatic generator, offering seamless convenience & security. With the perfect fusion of refined craftsmanship & back country, this exceptional estate is more than just a home - it's a lifestyle.

Listing Tools (detailViewNewGen)

Property Details of 324 Elk View Court

Property Details

Interior Features

Exterior Features

Utilities and Appliances

Other Details

Map Location

Listed by Monique Santilli of Real Broker,LLC DBA Real (720-807-2890)

Based on information submitted to Pikes Peak REALTOR® Services Corp as of November 15, 2025 7:02 PM EST . The real estate listing information and related content displayed on this site is provided exclusively for consumers' personal, non-commercial use and may not be used for any purpose other than to identify prospective properties consumers may be interested in purchasing. This information and related content is deemed reliable, but is not guaranteed accurate by the Pikes Peak REALTOR® Services Corp.

 
 

 

 

Hi there! How can we help you?

Contact us using the form below or give us a call.

Send Us A Message:

I agree to receive marketing and customer service calls and text messages from REAL | Brokers of Colorado. To opt out, you can reply 'stop' at any time or click the unsubscribe link in the emails. Consent is not a condition of purchase. Msg/data rates may apply. Msg frequency varies. Privacy Policy.

Do not fill in this field:

This site is protected by reCAPTCHA and the Google Privacy Policy and Terms of Service apply.

Hi there! How can we help you?

Contact us using the form below or give us a call.

Send Us A Message:

Do not fill in this field:

This site is protected by reCAPTCHA and the Google Privacy Policy and Terms of Service apply.

Hi there! How can we help you?

Contact us using the form below or give us a call.

Send Us A Message:

Do not fill in this field:

This site is protected by reCAPTCHA and the Google Privacy Policy and Terms of Service apply.

Do not fill in this field:

This site is protected by reCAPTCHA and the Google Privacy Policy and Terms of Service apply.

Do not fill in this field:

This site is protected by reCAPTCHA and the Google Privacy Policy and Terms of Service apply.

Do not fill in this field:

This site is protected by reCAPTCHA and the Google Privacy Policy and Terms of Service apply.

$

Do not fill in this field:

This site is protected by reCAPTCHA and the Google Privacy Policy and Terms of Service apply.