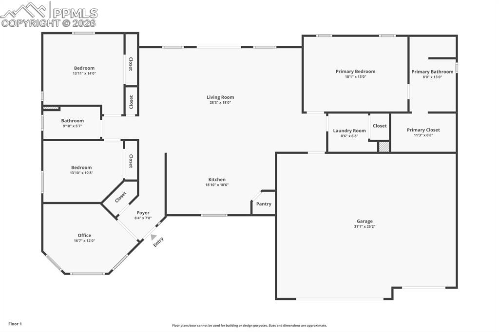
Welcome to one of Tranquility Homes' most popular ranch-style, no-basement floor plans. This thoughtfully designed home offers open, airy living without wasted space, highlighted by a vaulted great room with scissor trusses that creates a bright, grand feel. The spacious kitchen is the heart of the home, showcasing an oversized island, stainless steel appliances with gas range, 36" upper cabinets with crown molding, walk-in pantry, accent pendant lighting, and sweeping mountain views from the kitchen window. The adjoining dining and living areas provide ideal space for entertaining, centered around a cozy fireplace. A front office with double French doors and a large bay window offers flexibility as a home office or guest room, complete with panoramic mountain views. The private primary suite is tucked away in its own wing and features dual vanities, an elegant glass-enclosed shower with pebble floor and custom niche, barn door entry, and a well-designed walk-in closet with built-ins. Two additional bedrooms, a full bath with floor-to-ceiling tile, main-level laundry, and ample storage complete the interior. The deep and tall three-car garage provides excellent storage options, making the no-basement design both practical and efficient. Enjoy a large, private backyard ready for play, entertaining, or future landscaping, along with low-maintenance stucco exterior and beautiful mountain views throughout the neighborhood. Ideal for retirees seeking one-level living or families looking for space to grow-this home truly has it all.

Listing Tools (detailViewNewGen)

Property Details of 806 Keystone Loop

Property Details

Interior Features

Utilities and Appliances

Other Details

Map Location

Listed by Matthew Orsillo of Better Homes and Gardens Real Estate Kenney & Company (719-550-1515)

Based on information submitted to Pikes Peak REALTOR® Services Corp as of February 14, 2026 4:02 PM EST . The real estate listing information and related content displayed on this site is provided exclusively for consumers' personal, non-commercial use and may not be used for any purpose other than to identify prospective properties consumers may be interested in purchasing. This information and related content is deemed reliable, but is not guaranteed accurate by the Pikes Peak REALTOR® Services Corp.

 
 

 

 

Hi there! How can we help you?

Contact us using the form below or give us a call.

Send Us A Message:

I agree to receive marketing and customer service calls and text messages from REAL | Brokers of Colorado. To opt out, you can reply 'stop' at any time or click the unsubscribe link in the emails. Consent is not a condition of purchase. Msg/data rates may apply. Msg frequency varies. Privacy Policy.

Do not fill in this field:

This site is protected by reCAPTCHA and the Google Privacy Policy and Terms of Service apply.

Hi there! How can we help you?

Contact us using the form below or give us a call.

Send Us A Message:

Do not fill in this field:

This site is protected by reCAPTCHA and the Google Privacy Policy and Terms of Service apply.

Hi there! How can we help you?

Contact us using the form below or give us a call.

Send Us A Message:

Do not fill in this field:

This site is protected by reCAPTCHA and the Google Privacy Policy and Terms of Service apply.

Do not fill in this field:

This site is protected by reCAPTCHA and the Google Privacy Policy and Terms of Service apply.

Do not fill in this field:

This site is protected by reCAPTCHA and the Google Privacy Policy and Terms of Service apply.

Do not fill in this field:

This site is protected by reCAPTCHA and the Google Privacy Policy and Terms of Service apply.

$

Do not fill in this field:

This site is protected by reCAPTCHA and the Google Privacy Policy and Terms of Service apply.