Charming home with full basement with beautiful mountain views. This is a new build that has potential for additional sweat equity. The main level offers 2 bedrooms and 1 bath; functional single-level layout. Full unfinished basement provides excellent potential for expansion-add two bedrooms, a family room, or create custom flex space to suit your needs. 2nd bathroom has been framed in basement.Spacious yard and solid footprint make this home ideal for future growth. Less than 30 minutes to downtown Pueblo, at the base of the Greenhorn Mountains.***Optional opportunity to purchase the adjacent lot as well, which already has a foundation in place-offering excellent potential for additional development, guest home, or investment.***Optional opportunity to purchase the adjacent lot as well, which already has a foundation in place-offering excellent potential for additional development, guest home, or investment.

Listing Tools (detailViewNewGen)

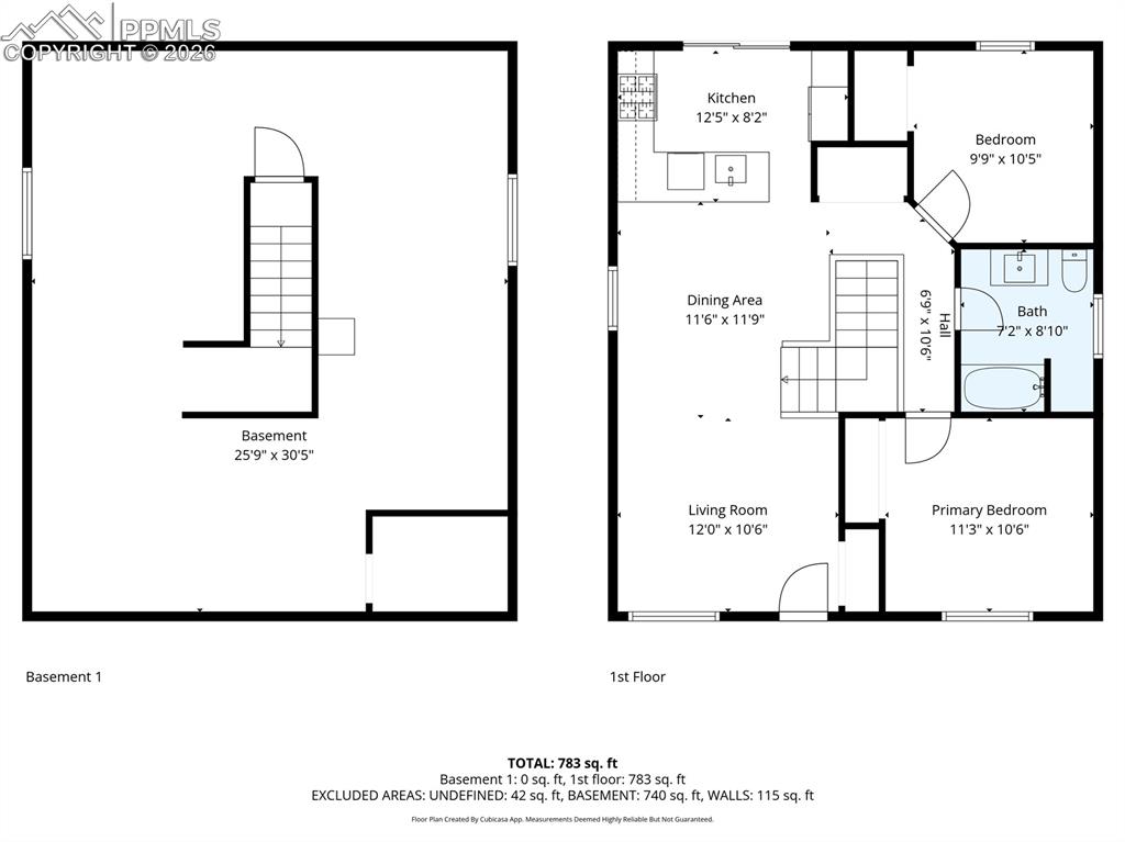
Property Details of 5228 Cuerno Verde Boulevard

Property Details

Interior Features

Utilities and Appliances

Other Details

Map Location

Listed by Holly Benn of Muldoon Associates Inc ((719) 591-8332)

Based on information submitted as of April 16, 2026 6:32 AM EDT. The real estate listing information and related content displayed on this site is provided exclusively for consumers’ personal, non-commercial use and may not be used for any purpose other than to identify prospective properties consumers may be interested in purchasing. This information and related content is deemed reliable but is not guaranteed accurate by the Pikes Peak REALTOR® Services Corp d/b/a elevateMLS.

 
 

 

 

Hi there! How can we help you?

Contact us using the form below or give us a call.

Send Us A Message:

I agree to receive marketing and customer service calls and text messages from REAL | Brokers of Colorado. To opt out, you can reply 'stop' at any time or click the unsubscribe link in the emails. Consent is not a condition of purchase. Msg/data rates may apply. Msg frequency varies. Privacy Policy.

Do not fill in this field:

This site is protected by reCAPTCHA and the Google Privacy Policy and Terms of Service apply.

Hi there! How can we help you?

Contact us using the form below or give us a call.

Send Us A Message:

Do not fill in this field:

This site is protected by reCAPTCHA and the Google Privacy Policy and Terms of Service apply.

Hi there! How can we help you?

Contact us using the form below or give us a call.

Send Us A Message:

Do not fill in this field:

This site is protected by reCAPTCHA and the Google Privacy Policy and Terms of Service apply.

Do not fill in this field:

This site is protected by reCAPTCHA and the Google Privacy Policy and Terms of Service apply.

Do not fill in this field:

This site is protected by reCAPTCHA and the Google Privacy Policy and Terms of Service apply.

Do not fill in this field:

This site is protected by reCAPTCHA and the Google Privacy Policy and Terms of Service apply.

$

Do not fill in this field:

This site is protected by reCAPTCHA and the Google Privacy Policy and Terms of Service apply.