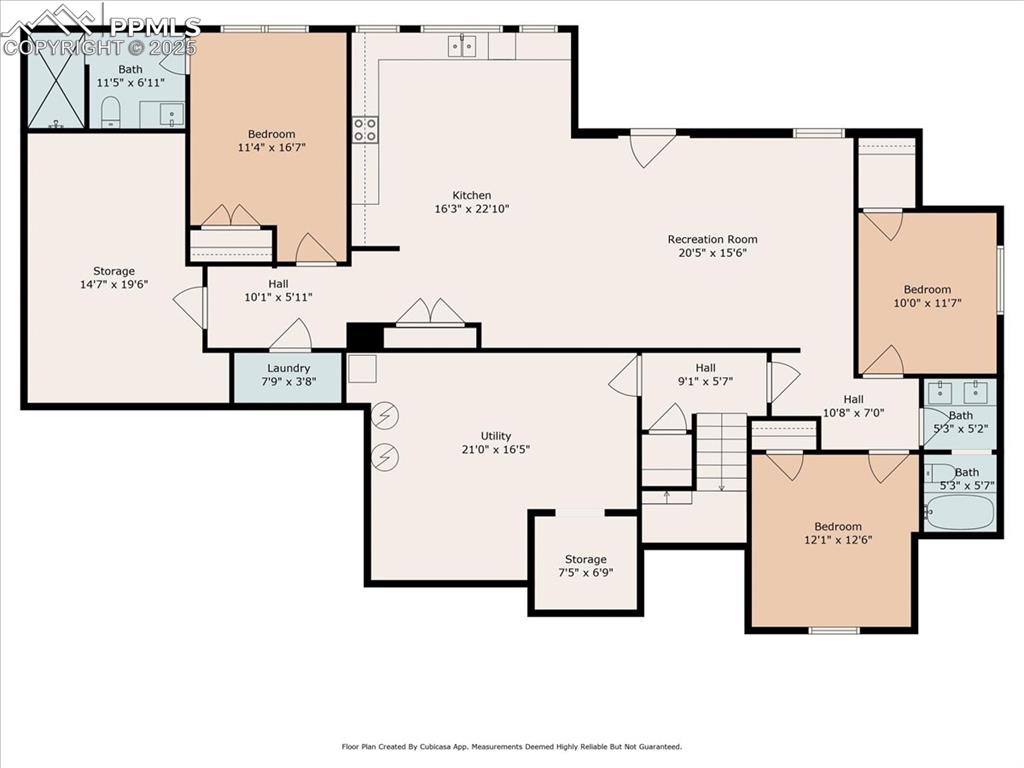
Exquisite Custom Estate on 35 Acres | Multi-Generational Design | Panoramic Views Situated in an unparalleled location, this one-of-a-kind custom estate offers the rare convenience of being within 20 minutes of Kiowa, Bennett, and Southlands, providing easy access to schools, dining, shopping, and commuter routes-all while enjoying complete privacy and serenity across 35 pristine acres. This beautifully crafted residence features 4,742 square feet of exceptional living space, designed with both comfort and function in mind. With 6 spacious bedrooms and 5 well-appointed bathrooms, this home is ideal for multi-generational living or extended guests. Enjoy full kitchens, laundry rooms, and family rooms on both the main and lower levels, allowing for truly independent living quarters while maintaining a cohesive layout. The main chef's kitchen showcases a massive one-slab island, high-end finishes, and abundant custom cabinetry-perfect for entertaining or everyday living. Step outside to lush, irrigated landscaping with real sod in the front yard, and take in unmatched 360 views of Colorado's breathtaking countryside. A standout feature is the oversized garage with 6 total parking spaces, along with ample room for your RV, recreational vehicles, tools, or private collection. The estate also includes a 1,200 sq ft barn, fully equipped with electric and water, offering space for up to 5 stalls. Additional features include multiple paddocks, and the land is fully fenced and cross-fenced, with water access in all pastures-ideal for horses, livestock, or any agricultural vision or hobby farm lifestyle. Whether you're looking to raise animals or simply enjoy the peace and productivity of rural living, this property offers endless possibilities. This estate is a rare opportunity to own luxury, acreage, and versatility-all in one.

Listing Tools (detailViewNewGen)

Property Details of 45425 Wolf Creek Drive

Property Details

Interior Features

Exterior Features

Utilities and Appliances

Other Details

Map Location

Listed by Chelsea Pruitt of Landmark Premier Properties ((303)646-1171)

Based on information submitted to Pikes Peak REALTOR® Services Corp as of November 13, 2025 11:49 PM EST . The real estate listing information and related content displayed on this site is provided exclusively for consumers' personal, non-commercial use and may not be used for any purpose other than to identify prospective properties consumers may be interested in purchasing. This information and related content is deemed reliable, but is not guaranteed accurate by the Pikes Peak REALTOR® Services Corp.

 
 

 

 

Hi there! How can we help you?

Contact us using the form below or give us a call.

Send Us A Message:

I agree to receive marketing and customer service calls and text messages from REAL | Brokers of Colorado. To opt out, you can reply 'stop' at any time or click the unsubscribe link in the emails. Consent is not a condition of purchase. Msg/data rates may apply. Msg frequency varies. Privacy Policy.

Do not fill in this field:

This site is protected by reCAPTCHA and the Google Privacy Policy and Terms of Service apply.

Hi there! How can we help you?

Contact us using the form below or give us a call.

Send Us A Message:

Do not fill in this field:

This site is protected by reCAPTCHA and the Google Privacy Policy and Terms of Service apply.

Hi there! How can we help you?

Contact us using the form below or give us a call.

Send Us A Message:

Do not fill in this field:

This site is protected by reCAPTCHA and the Google Privacy Policy and Terms of Service apply.

Do not fill in this field:

This site is protected by reCAPTCHA and the Google Privacy Policy and Terms of Service apply.

Do not fill in this field:

This site is protected by reCAPTCHA and the Google Privacy Policy and Terms of Service apply.

Do not fill in this field:

This site is protected by reCAPTCHA and the Google Privacy Policy and Terms of Service apply.

$

Do not fill in this field:

This site is protected by reCAPTCHA and the Google Privacy Policy and Terms of Service apply.