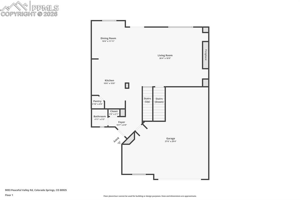
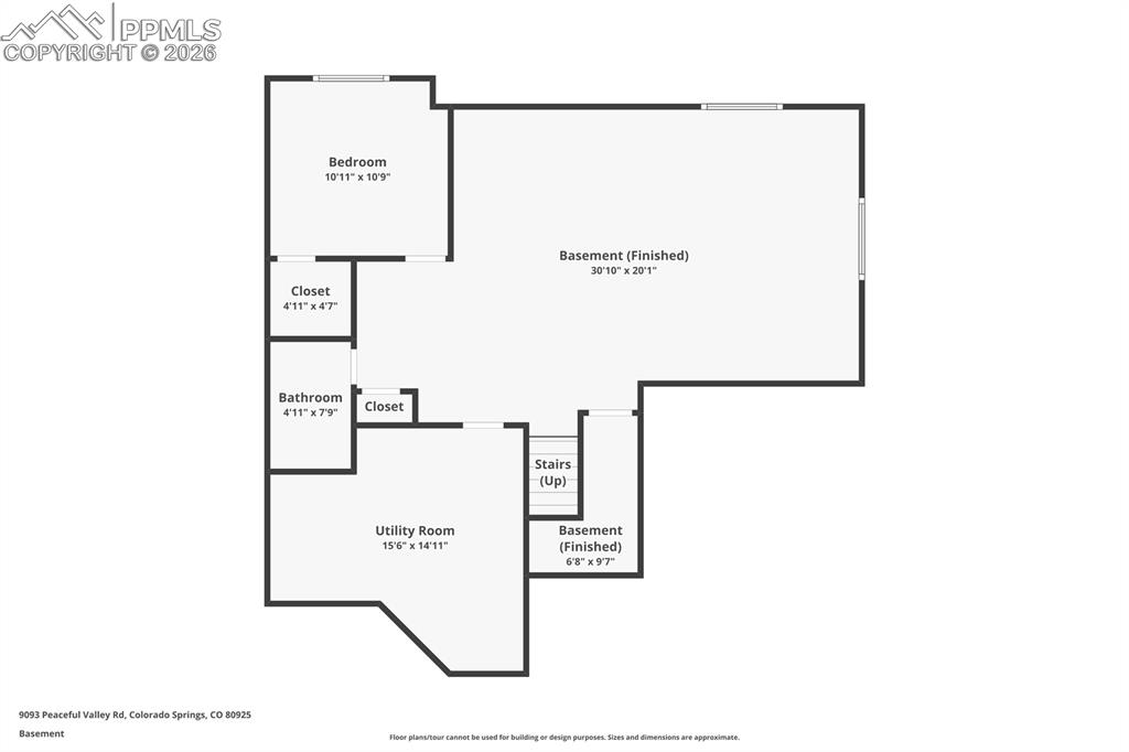
Built in 2024, this beautifully designed two-story home offers 3,478 square feet of modern living on a desirable corner lot with breathtaking Pikes Peak views. Thoughtfully crafted for comfort and functionality, the open-concept main level features luxury plank flooring, abundant natural light, and a spacious living room centered around a cozy fireplace with custom niches-perfect for everyday living and entertaining. The chef-inspired kitchen showcases Samsung Energy Star stainless steel appliances, granite countertops, generous cabinetry, and seamless flow into the dining area. Upstairs, four bedrooms are conveniently located together, including the primary retreat featuring French doors, Pikes Peak/mountain views, and a spa-like en suite bath. An upper-level laundry room adds everyday convenience. The fully finished basement expands your living space with a large recreation area, fifth bedroom, and full bathroom-ideal for guests, multigenerational living, or a home office. Energy-efficient features include a high-efficiency furnace and water heater. Enjoy outdoor living on this spacious lot, just steps from neighborhood trails and a playground, and minutes from military bases (Ft Carson and Peterson SFB), shopping, dining, and the COS Airport. Complete with a 3-car tandem garage, this move-in-ready home offers exceptional space, efficiency, and location!

Listing Tools (detailViewNewGen)

Property Details of 9093 Peaceful Valley Road

Property Details

Interior Features

Exterior Features

Utilities and Appliances

Community

Other Details

Map Location

Listed by Alicia Armendariz of LPT Realty LLC (775-544-1328)

Based on information submitted to Pikes Peak REALTOR® Services Corp as of February 10, 2026 11:48 PM EST . The real estate listing information and related content displayed on this site is provided exclusively for consumers' personal, non-commercial use and may not be used for any purpose other than to identify prospective properties consumers may be interested in purchasing. This information and related content is deemed reliable, but is not guaranteed accurate by the Pikes Peak REALTOR® Services Corp.

 
 

 

 

Hi there! How can we help you?

Contact us using the form below or give us a call.

Send Us A Message:

I agree to receive marketing and customer service calls and text messages from REAL | Brokers of Colorado. To opt out, you can reply 'stop' at any time or click the unsubscribe link in the emails. Consent is not a condition of purchase. Msg/data rates may apply. Msg frequency varies. Privacy Policy.

Do not fill in this field:

This site is protected by reCAPTCHA and the Google Privacy Policy and Terms of Service apply.

Hi there! How can we help you?

Contact us using the form below or give us a call.

Send Us A Message:

Do not fill in this field:

This site is protected by reCAPTCHA and the Google Privacy Policy and Terms of Service apply.

Hi there! How can we help you?

Contact us using the form below or give us a call.

Send Us A Message:

Do not fill in this field:

This site is protected by reCAPTCHA and the Google Privacy Policy and Terms of Service apply.

Do not fill in this field:

This site is protected by reCAPTCHA and the Google Privacy Policy and Terms of Service apply.

Do not fill in this field:

This site is protected by reCAPTCHA and the Google Privacy Policy and Terms of Service apply.

Do not fill in this field:

This site is protected by reCAPTCHA and the Google Privacy Policy and Terms of Service apply.

$

Do not fill in this field:

This site is protected by reCAPTCHA and the Google Privacy Policy and Terms of Service apply.