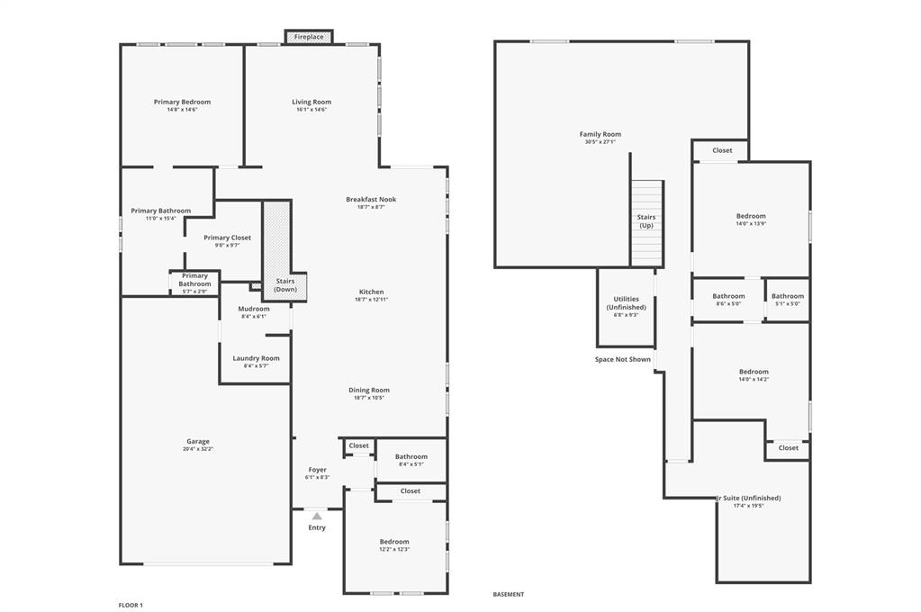
Built in 2022 & named the Parade of Homes People's Choice, this meticulously maintained Wolf Ranch home offers the feel of new construction with the bonus of completed upgrades. Unlike new builds that require a significant investment in landscaping & finishes after closing, this home has every detail complete. Additionally, the basement offers a versatile unfinished room with an egress window and pre-plumbing, making it simple to add a 5th bedroom with private bath if desired. Highlights of this home include modern light fixtures, smart-home features throughout, upgraded Samsung appliances, Levolor blinds, and high-end professional landscaping with a top-of-the-line drainage system, native plants & trees, flagstone patio, fire pit, a bubbling boulder, backyard fountain, & patio lighting - all enabled from your phone. The open-concept great room welcomes you with 12-foot ceilings, oversized windows, & a gas fireplace with custom mantle. The gourmet kitchen features a 12-foot quartz island with overhang, 42” upper cabinets, range hood, under cabinet & island lighting, & custom cedar shelving. Every appliance has been upgraded to Samsung smart models, including a 4-door flex refrigerator, dual ovens with microwave combo, & 5-burner gas cooktop-all controlled from your phone. The primary suite features a 5-piece bath with freestanding tub, dual vanities, & a walk-in closet enhanced with custom wood shelving to maximize storage. The laundry room, designed for convenience, has a collapsible wooden folding table & a built-in pulley system for hanging clothes. The basement, with its 9-foot ceilings, includes a large family room, and 2 oversized bedrooms with Jack-and-Jill bath. Additional features include: tankless water heater, ManaBloc plumbing, radon mitigation & 220V outlet in the garage for welding or EV charging. With its open-concept layout and stunning backyard oasis, you'll have the ideal space to entertain both indoors & out. This home truly has it all.

Listing Tools (detailViewNewGen)

Property Details of 5466 Gansevoort Drive

Property Details

Interior Features

Exterior Features

Utilities and Appliances

Community

Other Details

Map Location

Listed by Amanda Schneider of Amanda Schneider

Based on information submitted to Pikes Peak REALTOR® Services Corp as of November 13, 2025 11:49 PM EST . The real estate listing information and related content displayed on this site is provided exclusively for consumers' personal, non-commercial use and may not be used for any purpose other than to identify prospective properties consumers may be interested in purchasing. This information and related content is deemed reliable, but is not guaranteed accurate by the Pikes Peak REALTOR® Services Corp.

 
 

 

 

Hi there! How can we help you?

Contact us using the form below or give us a call.

Send Us A Message:

I agree to receive marketing and customer service calls and text messages from REAL | Brokers of Colorado. To opt out, you can reply 'stop' at any time or click the unsubscribe link in the emails. Consent is not a condition of purchase. Msg/data rates may apply. Msg frequency varies. Privacy Policy.

Do not fill in this field:

This site is protected by reCAPTCHA and the Google Privacy Policy and Terms of Service apply.

Hi there! How can we help you?

Contact us using the form below or give us a call.

Send Us A Message:

Do not fill in this field:

This site is protected by reCAPTCHA and the Google Privacy Policy and Terms of Service apply.

Hi there! How can we help you?

Contact us using the form below or give us a call.

Send Us A Message:

Do not fill in this field:

This site is protected by reCAPTCHA and the Google Privacy Policy and Terms of Service apply.

Do not fill in this field:

This site is protected by reCAPTCHA and the Google Privacy Policy and Terms of Service apply.

Do not fill in this field:

This site is protected by reCAPTCHA and the Google Privacy Policy and Terms of Service apply.

Do not fill in this field:

This site is protected by reCAPTCHA and the Google Privacy Policy and Terms of Service apply.

$

Do not fill in this field:

This site is protected by reCAPTCHA and the Google Privacy Policy and Terms of Service apply.