Welcome to 5460 Villa Circle-an extensively renovated home that blends modern updates with comfortable, functional living in a prime cul-de-sac location. Nearly every inch of this home has been thoughtfully updated, offering true peace of mind and move-in-ready convenience. Major improvements include a newer roof, updated electrical panel, and a beautifully redesigned deck-perfect for enjoying Colorado's outdoor lifestyle. Step inside to a bright and inviting entry that opens into a spacious, open-concept layout. The kitchen, dining, and family room flow seamlessly together, creating an ideal setting for both everyday living and entertaining. The kitchen has been tastefully updated with modern finishes, making it the true heart of the home. Additional highlights include a large two-car garage equipped with an EV charger, generous living spaces throughout, and a well-positioned lot that offers both privacy and usability. Situated on a quiet cul-de-sac, this home combines style, function, and location-making it a standout opportunity you won't want to miss.

Listing Tools (detailViewNewGen)

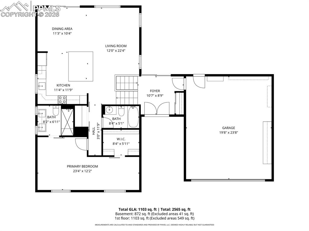
Property Details of 5460 Villa Circle

Property Details

Interior Features

Exterior Features

Utilities and Appliances

Community

Other Details

Map Location

Listed by Michael Dubois of Pikes Peak Dream Homes Realty (719-284-1900)

Based on information submitted as of April 16, 2026 7:02 AM EDT. The real estate listing information and related content displayed on this site is provided exclusively for consumers’ personal, non-commercial use and may not be used for any purpose other than to identify prospective properties consumers may be interested in purchasing. This information and related content is deemed reliable but is not guaranteed accurate by the Pikes Peak REALTOR® Services Corp d/b/a elevateMLS.

 
 

 

 

Hi there! How can we help you?

Contact us using the form below or give us a call.

Send Us A Message:

I agree to receive marketing and customer service calls and text messages from REAL | Brokers of Colorado. To opt out, you can reply 'stop' at any time or click the unsubscribe link in the emails. Consent is not a condition of purchase. Msg/data rates may apply. Msg frequency varies. Privacy Policy.

Do not fill in this field:

This site is protected by reCAPTCHA and the Google Privacy Policy and Terms of Service apply.

Hi there! How can we help you?

Contact us using the form below or give us a call.

Send Us A Message:

Do not fill in this field:

This site is protected by reCAPTCHA and the Google Privacy Policy and Terms of Service apply.

Hi there! How can we help you?

Contact us using the form below or give us a call.

Send Us A Message:

Do not fill in this field:

This site is protected by reCAPTCHA and the Google Privacy Policy and Terms of Service apply.

Do not fill in this field:

This site is protected by reCAPTCHA and the Google Privacy Policy and Terms of Service apply.

Do not fill in this field:

This site is protected by reCAPTCHA and the Google Privacy Policy and Terms of Service apply.

Do not fill in this field:

This site is protected by reCAPTCHA and the Google Privacy Policy and Terms of Service apply.

$

Do not fill in this field:

This site is protected by reCAPTCHA and the Google Privacy Policy and Terms of Service apply.