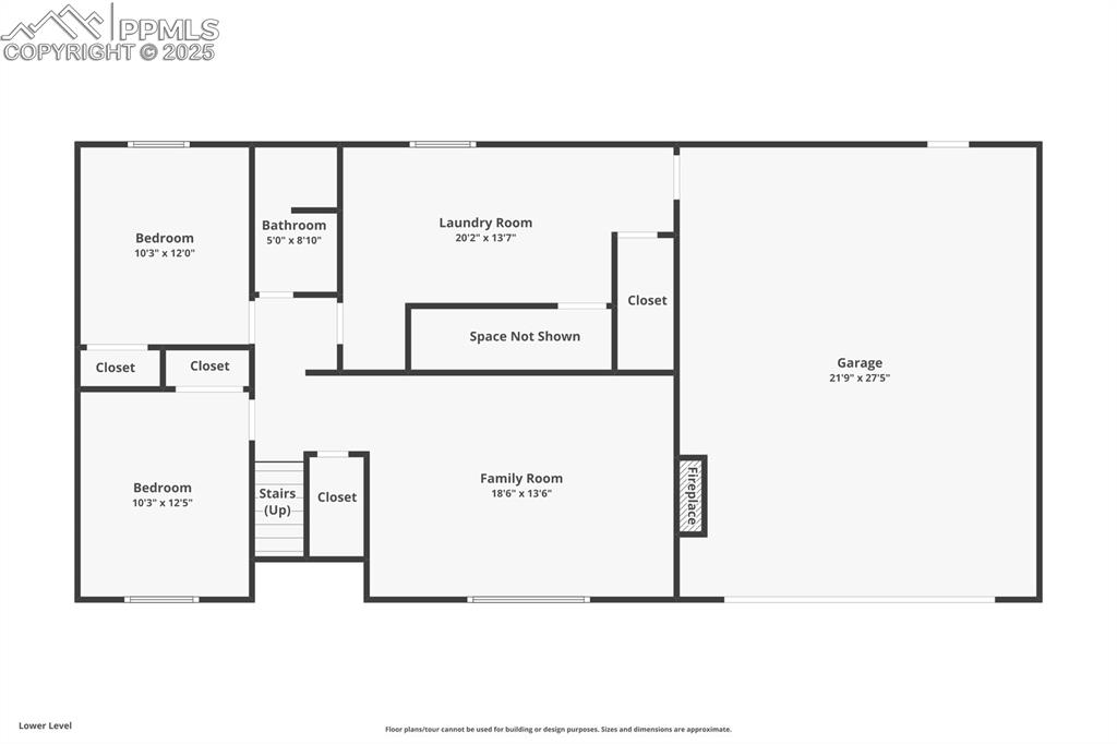
Full of character and potential, this 4-bedroom, 2-bath bi-level in the established Rustic Hills neighborhood sits on a generously sized lot and offers a well-loved interior that's largely original. The upper level includes a welcoming Living Room, Dining Area, and Kitchen with walk-out access to a Sunroom/FLEX Space. The Primary Bedroom connects to a full bath, with a second Bedroom nearby. Downstairs, the lower level offers a cozy Family Room with a classic brick fireplace, two additional Bedrooms, a 3/4 Bath, and a sizable Laundry/Storage Room. While the home has not been updated, it offers a solid foundation, great layout, and plenty of opportunity for customization! Conveniently located near shopping, dining, and with easy access to both the Powers and S. Academy Blvd corridors. Explore the 3D tour and imagine the possibilities-schedule a showing today!

Listing Tools (detailViewNewGen)

Property Details of 1044 Doyle Place

Property Details

Interior Features

Utilities and Appliances

Community

Other Details

Map Location

Listed by Ashley Blasius of Cornerstone Real Estate Team (719-243-6400)

Based on information submitted to Pikes Peak REALTOR® Services Corp as of November 15, 2025 8:17 PM EST . The real estate listing information and related content displayed on this site is provided exclusively for consumers' personal, non-commercial use and may not be used for any purpose other than to identify prospective properties consumers may be interested in purchasing. This information and related content is deemed reliable, but is not guaranteed accurate by the Pikes Peak REALTOR® Services Corp.

 
 

 

 

Hi there! How can we help you?

Contact us using the form below or give us a call.

Send Us A Message:

I agree to receive marketing and customer service calls and text messages from REAL | Brokers of Colorado. To opt out, you can reply 'stop' at any time or click the unsubscribe link in the emails. Consent is not a condition of purchase. Msg/data rates may apply. Msg frequency varies. Privacy Policy.

Do not fill in this field:

This site is protected by reCAPTCHA and the Google Privacy Policy and Terms of Service apply.

Hi there! How can we help you?

Contact us using the form below or give us a call.

Send Us A Message:

Do not fill in this field:

This site is protected by reCAPTCHA and the Google Privacy Policy and Terms of Service apply.

Hi there! How can we help you?

Contact us using the form below or give us a call.

Send Us A Message:

Do not fill in this field:

This site is protected by reCAPTCHA and the Google Privacy Policy and Terms of Service apply.

Do not fill in this field:

This site is protected by reCAPTCHA and the Google Privacy Policy and Terms of Service apply.

Do not fill in this field:

This site is protected by reCAPTCHA and the Google Privacy Policy and Terms of Service apply.

Do not fill in this field:

This site is protected by reCAPTCHA and the Google Privacy Policy and Terms of Service apply.

$

Do not fill in this field:

This site is protected by reCAPTCHA and the Google Privacy Policy and Terms of Service apply.