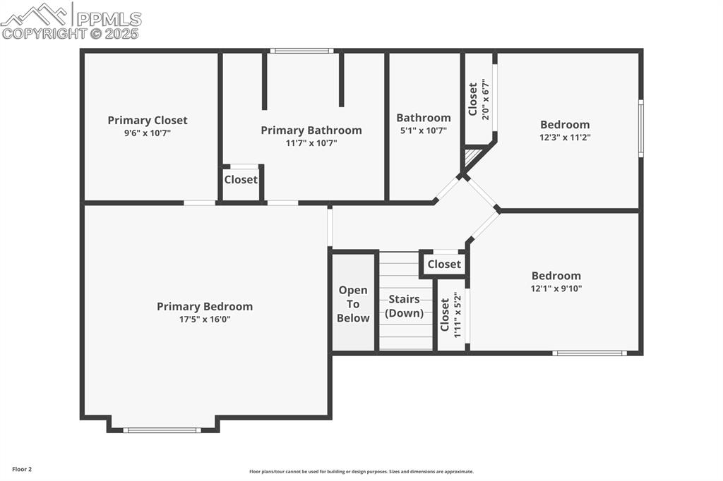
5 Bedroom, three level house in Fountain Valley Ranch. The main level features the living room, formal dining room, kitchen, and family room with a gas fireplace. The kitchen also has granite counters, great storage space, a gas range, large center island, eat in area, and it opens onto the deck. Upstairs hosts three bedrooms including the master which features a walk in closet and an adjoining 5 piece bath. The walkout basement can function as a secondary family room or a private retreat for the two bedrooms. The backyard is exceptional with a deck, patio, and great landscaping. Close to shopping, restaurants, Fort Carson, Peterson Air Force Base, and more!

Listing Tools (detailViewNewGen)

Property Details of 1065 Harbourne Street

Property Details

Interior Features

Exterior Features

Utilities and Appliances

Community

Other Details

Map Location

Listed by Iain Morrison of McGraw Pikes Peak Group

Based on information submitted to Pikes Peak REALTOR® Services Corp as of November 15, 2025 6:47 PM EST . The real estate listing information and related content displayed on this site is provided exclusively for consumers' personal, non-commercial use and may not be used for any purpose other than to identify prospective properties consumers may be interested in purchasing. This information and related content is deemed reliable, but is not guaranteed accurate by the Pikes Peak REALTOR® Services Corp.

 
 

 

 

Hi there! How can we help you?

Contact us using the form below or give us a call.

Send Us A Message:

I agree to receive marketing and customer service calls and text messages from REAL | Brokers of Colorado. To opt out, you can reply 'stop' at any time or click the unsubscribe link in the emails. Consent is not a condition of purchase. Msg/data rates may apply. Msg frequency varies. Privacy Policy.

Do not fill in this field:

This site is protected by reCAPTCHA and the Google Privacy Policy and Terms of Service apply.

Hi there! How can we help you?

Contact us using the form below or give us a call.

Send Us A Message:

Do not fill in this field:

This site is protected by reCAPTCHA and the Google Privacy Policy and Terms of Service apply.

Hi there! How can we help you?

Contact us using the form below or give us a call.

Send Us A Message:

Do not fill in this field:

This site is protected by reCAPTCHA and the Google Privacy Policy and Terms of Service apply.

Do not fill in this field:

This site is protected by reCAPTCHA and the Google Privacy Policy and Terms of Service apply.

Do not fill in this field:

This site is protected by reCAPTCHA and the Google Privacy Policy and Terms of Service apply.

Do not fill in this field:

This site is protected by reCAPTCHA and the Google Privacy Policy and Terms of Service apply.

$

Do not fill in this field:

This site is protected by reCAPTCHA and the Google Privacy Policy and Terms of Service apply.