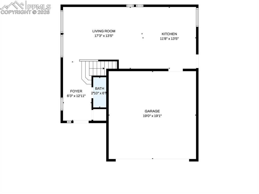
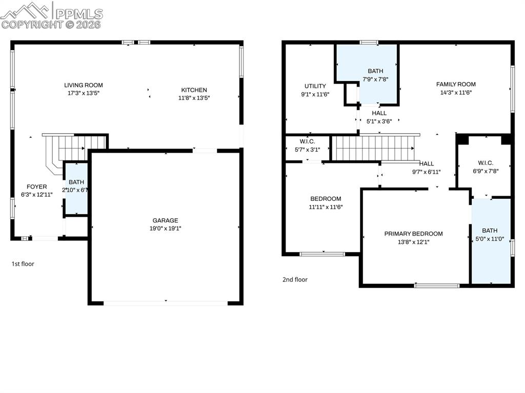
This is a short sale and is being sold in its current condition (As-Is). Set in the heart of Banning Lewis Ranch, this two-story home offers a rare chance to live in one of Colorado Springs' most loved master-planned communities. From the moment you walk in, the home feels light-filled and welcoming. Large windows create an open, airy atmosphere. The kitchen is anchored by an oversized granite island perfect for meals, homework, or gathering with friends. The home includes all appliances, including a Samsung smart refrigerator with Alexa and SmartHub, plus a smart oven with air-fry capability. Upstairs, both bedrooms sit on the same level with a versatile loft-ideal for movies, workouts, or a cozy hangout. The layout offers comfort and flexibility. The two-car garage includes a 240V EV charging outlet, ready for modern living. Upgrades include luxury vinyl plank flooring, 42-inch cabinets, central air, upgraded lighting, five-panel doors, a gas stove, and new dishwasher. A private, fenced backyard with grass and patio is perfect for pets, play, or quiet evenings in. This home is a short walk from a community rec center with a water park, playground, and open space. The HOA covers snow removal, trash and recycling, front yard landscaping & sprinklers, and full access to The Ranch House amenities, including pools, summer water park, pickleball courts, and a 24-hour fitness center. Banning Lewis Ranch is known for premier schools, over 75 miles of trails, abundant parks, and vibrant events. With easy access to Powers, military bases, shopping, dining, and entertainment, this location blends lifestyle and convenience. Homes here rarely come available at this value, making this an incredible opportunity to put down roots in Colorado Springs.

Listing Tools (detailViewNewGen)

Property Details of 6628 John Muir Trail

Property Details

Interior Features

Exterior Features

Utilities and Appliances

Other Details

Map Location

Listed by Josiah Whitten of Real Broker,LLC DBA Real (720-807-2890)

Based on information submitted to Pikes Peak REALTOR® Services Corp as of February 10, 2026 11:48 PM EST . The real estate listing information and related content displayed on this site is provided exclusively for consumers' personal, non-commercial use and may not be used for any purpose other than to identify prospective properties consumers may be interested in purchasing. This information and related content is deemed reliable, but is not guaranteed accurate by the Pikes Peak REALTOR® Services Corp.

 
 

 

 

Hi there! How can we help you?

Contact us using the form below or give us a call.

Send Us A Message:

I agree to receive marketing and customer service calls and text messages from REAL | Brokers of Colorado. To opt out, you can reply 'stop' at any time or click the unsubscribe link in the emails. Consent is not a condition of purchase. Msg/data rates may apply. Msg frequency varies. Privacy Policy.

Do not fill in this field:

This site is protected by reCAPTCHA and the Google Privacy Policy and Terms of Service apply.

Hi there! How can we help you?

Contact us using the form below or give us a call.

Send Us A Message:

Do not fill in this field:

This site is protected by reCAPTCHA and the Google Privacy Policy and Terms of Service apply.

Hi there! How can we help you?

Contact us using the form below or give us a call.

Send Us A Message:

Do not fill in this field:

This site is protected by reCAPTCHA and the Google Privacy Policy and Terms of Service apply.

Do not fill in this field:

This site is protected by reCAPTCHA and the Google Privacy Policy and Terms of Service apply.

Do not fill in this field:

This site is protected by reCAPTCHA and the Google Privacy Policy and Terms of Service apply.

Do not fill in this field:

This site is protected by reCAPTCHA and the Google Privacy Policy and Terms of Service apply.

$

Do not fill in this field:

This site is protected by reCAPTCHA and the Google Privacy Policy and Terms of Service apply.