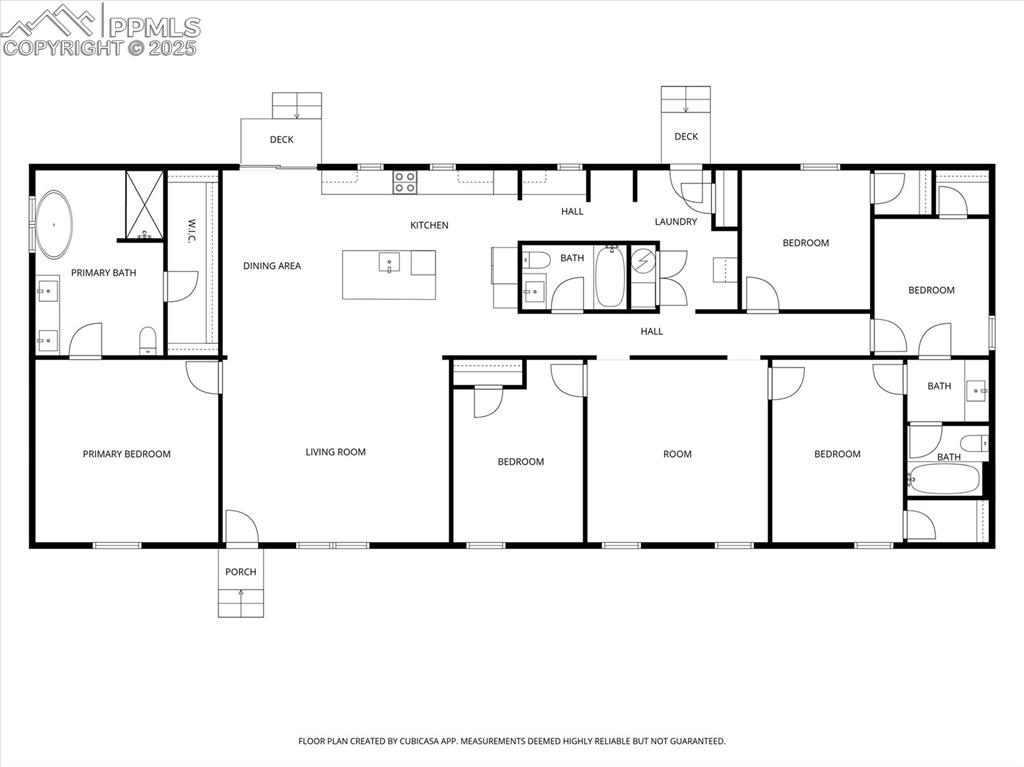
New home to be built for your family in just 4 months. This house is big and gorgeous! a 40 acres sanctuary situated at walking distance to Elementary, Middle, and Highschool. 2 minutes drive to grocery shopping, restaurants, gas and more, 20 minutes to Colorado Springs, 20 minutes to Falcon Walmart, Kingsoopers, restaurants and shopping. With 2,305 square feet this ample and comfotable home offers 5 bedrooms and 3 full bathrooms, extra-large walking closet in master's bedroom, mud room, energy-efficient furnace with smart thermostat for lower utilies bills. No covenants, no restrictions. Horses and other animals are allowed. Over sized dettached 4 car garage/barn/storage with electrical power and a carport. Inspiring views of the local mountain ranges. Ideal for horses, and for people in need of space for equipment, cars, hobbies, etcetera. Built with pride, 7 year structural warranty, and 1 year warranty on interior finishes and appliances. Paved roads all the way to the property. An absolutely beautiful and peaceful private retreat from the city noise and conflicts. This one will go fast!

Listing Tools (detailViewNewGen)

Property Details of 22843 Handle Road

Property Details

Interior Features

Utilities and Appliances

Community

Other Details

Map Location

Listed by Horacio Ramirez of Boutique Homes,LLC (720-400-6688)

Based on information submitted to Pikes Peak REALTOR® Services Corp as of December 4, 2025 5:47 PM EST . The real estate listing information and related content displayed on this site is provided exclusively for consumers' personal, non-commercial use and may not be used for any purpose other than to identify prospective properties consumers may be interested in purchasing. This information and related content is deemed reliable, but is not guaranteed accurate by the Pikes Peak REALTOR® Services Corp.

 
 

 

 

Hi there! How can we help you?

Contact us using the form below or give us a call.

Send Us A Message:

I agree to receive marketing and customer service calls and text messages from REAL | Brokers of Colorado. To opt out, you can reply 'stop' at any time or click the unsubscribe link in the emails. Consent is not a condition of purchase. Msg/data rates may apply. Msg frequency varies. Privacy Policy.

Do not fill in this field:

This site is protected by reCAPTCHA and the Google Privacy Policy and Terms of Service apply.

Hi there! How can we help you?

Contact us using the form below or give us a call.

Send Us A Message:

Do not fill in this field:

This site is protected by reCAPTCHA and the Google Privacy Policy and Terms of Service apply.

Hi there! How can we help you?

Contact us using the form below or give us a call.

Send Us A Message:

Do not fill in this field:

This site is protected by reCAPTCHA and the Google Privacy Policy and Terms of Service apply.

Do not fill in this field:

This site is protected by reCAPTCHA and the Google Privacy Policy and Terms of Service apply.

Do not fill in this field:

This site is protected by reCAPTCHA and the Google Privacy Policy and Terms of Service apply.

Do not fill in this field:

This site is protected by reCAPTCHA and the Google Privacy Policy and Terms of Service apply.

$

Do not fill in this field:

This site is protected by reCAPTCHA and the Google Privacy Policy and Terms of Service apply.