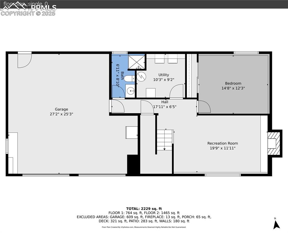
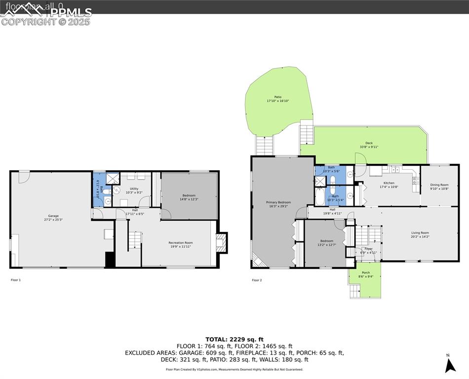
Welcome to this beautifully maintained Rockrimmon home, brimming with natural light and set on a .21-acre lot. Key updates include a new furnace in 2021, a 50-gallon water heater in 2019, a new roof in 2014, and an updated electrical panel in 2012-providing peace of mind for years to come - just minutes from schools, parks, and shopping. This house combines comfort, character, and thoughtful improvements. But the real value here is the location. In real estate, you can change a house, but you can't change its location. This home sits less than 10 minutes from several parks, including Discovery, Cottonwood Creek, Woodmen Valley, Erindale, Pulpit Rock, and Ute Valley Parks. It sits in the highly desired NW side of town, tucked into the foothills of the Rocky Mountain front range. Nestled among mature trees in a welcoming neighborhood, this is where quality, value, peace, and quiet come standard. Location is not just a feature; it's a lifestyle, and that is something you cannot substitute. Rich hardwood floors, arched doorways, and oversized windows create warmth throughout multiple living and family spaces. The freshly painted and updated kitchen offers tray ceilings, ample cabinetry, slab granite counters, custom tile backsplash, a pantry, and updated appliances, including a new refrigerator and range in 2024, and a new microwave in 2023. The kitchen opens to a large composite deck-shaded by pines, a fenced yard, two paverstone patios, and a tranquil rock waterfall with pond. The primary suite features a gas fireplace, sitting area, double closets, and an attached bath. A second bedroom enjoys a nearby full bath, while the spacious lower level boasts another fireplace-anchored family room, a private bedroom and a bath for guests. Outdoors, enjoy true Colorado living with multiple entertaining areas, a fire pit, and BBQ space. Additional highlights include central A/C, stucco exterior, vinyl windows, gated trailer parking, and an attached 2-car garage.

Listing Tools (detailViewNewGen)

Property Details of 87 Raven Hills Court

Property Details

Interior Features

Exterior Features

Utilities and Appliances

Other Details

Map Location

Listed by Lance Thibault of REMAX PROPERTIES (719-548-8600)

Based on information submitted to Pikes Peak REALTOR® Services Corp as of November 19, 2025 5:17 AM EST . The real estate listing information and related content displayed on this site is provided exclusively for consumers' personal, non-commercial use and may not be used for any purpose other than to identify prospective properties consumers may be interested in purchasing. This information and related content is deemed reliable, but is not guaranteed accurate by the Pikes Peak REALTOR® Services Corp.

 
 

 

 

Hi there! How can we help you?

Contact us using the form below or give us a call.

Send Us A Message:

I agree to receive marketing and customer service calls and text messages from REAL | Brokers of Colorado. To opt out, you can reply 'stop' at any time or click the unsubscribe link in the emails. Consent is not a condition of purchase. Msg/data rates may apply. Msg frequency varies. Privacy Policy.

Do not fill in this field:

This site is protected by reCAPTCHA and the Google Privacy Policy and Terms of Service apply.

Hi there! How can we help you?

Contact us using the form below or give us a call.

Send Us A Message:

Do not fill in this field:

This site is protected by reCAPTCHA and the Google Privacy Policy and Terms of Service apply.

Hi there! How can we help you?

Contact us using the form below or give us a call.

Send Us A Message:

Do not fill in this field:

This site is protected by reCAPTCHA and the Google Privacy Policy and Terms of Service apply.

Do not fill in this field:

This site is protected by reCAPTCHA and the Google Privacy Policy and Terms of Service apply.

Do not fill in this field:

This site is protected by reCAPTCHA and the Google Privacy Policy and Terms of Service apply.

Do not fill in this field:

This site is protected by reCAPTCHA and the Google Privacy Policy and Terms of Service apply.

$

Do not fill in this field:

This site is protected by reCAPTCHA and the Google Privacy Policy and Terms of Service apply.