Spacious and full of potential, this inviting 4-level home offers room to spread out and make it your own. The open-layout kitchen flows effortlessly into the main living area, creating a comfortable space for everyday living and entertaining. One of the bathrooms has been beautifully remodeled, featuring stylish tile throughout and a sleek new sink that adds a modern touch. Fresh paint on select interior and exterior areas gives the home a refreshed feel, while the roof-inspected just a year ago-was noted to be in good condition for added peace of mind. The home sits on a generous lot with plenty of yard space in both the front and back, perfect for gardening, outdoor gatherings, or simply enjoying Colorado's sunshine. With multiple levels of living space, there's flexibility to create additional bedrooms, offices, or recreation areas to suit your lifestyle. Whether you're looking for space to grow, a home to customize, or a solid investment opportunity, this property offers the perfect foundation-ready for its next owner to make it shine.

Listing Tools (detailViewNewGen)

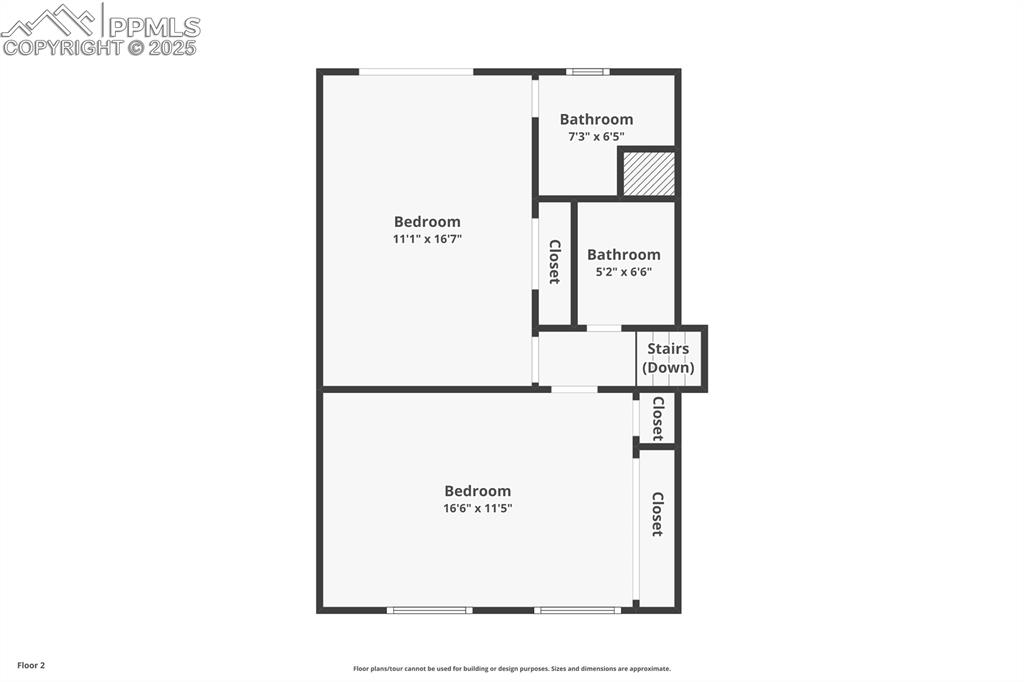
Property Details of 622 Rowe Lane

Property Details

Interior Features

Exterior Features

Utilities and Appliances

Community

Other Details

Map Location

Listed by Tony Casados of Real Broker,LLC DBA Real (720-807-2890)

Based on information submitted to Pikes Peak REALTOR® Services Corp as of November 17, 2025 7:47 PM EST . The real estate listing information and related content displayed on this site is provided exclusively for consumers' personal, non-commercial use and may not be used for any purpose other than to identify prospective properties consumers may be interested in purchasing. This information and related content is deemed reliable, but is not guaranteed accurate by the Pikes Peak REALTOR® Services Corp.

 
 

 

 

Hi there! How can we help you?

Contact us using the form below or give us a call.

Send Us A Message:

I agree to receive marketing and customer service calls and text messages from REAL | Brokers of Colorado. To opt out, you can reply 'stop' at any time or click the unsubscribe link in the emails. Consent is not a condition of purchase. Msg/data rates may apply. Msg frequency varies. Privacy Policy.

Do not fill in this field:

This site is protected by reCAPTCHA and the Google Privacy Policy and Terms of Service apply.

Hi there! How can we help you?

Contact us using the form below or give us a call.

Send Us A Message:

Do not fill in this field:

This site is protected by reCAPTCHA and the Google Privacy Policy and Terms of Service apply.

Hi there! How can we help you?

Contact us using the form below or give us a call.

Send Us A Message:

Do not fill in this field:

This site is protected by reCAPTCHA and the Google Privacy Policy and Terms of Service apply.

Do not fill in this field:

This site is protected by reCAPTCHA and the Google Privacy Policy and Terms of Service apply.

Do not fill in this field:

This site is protected by reCAPTCHA and the Google Privacy Policy and Terms of Service apply.

Do not fill in this field:

This site is protected by reCAPTCHA and the Google Privacy Policy and Terms of Service apply.

$

Do not fill in this field:

This site is protected by reCAPTCHA and the Google Privacy Policy and Terms of Service apply.